ZAKANGSNC

¼¼°è·Î ³ª¾Æ°¡´Â ÁÖÂ÷Àå½Ã°ø Àü¹®È¸»ç

Parking Lot Technical Data

ö°ñÁÖÂ÷Àå ±â¼úÀÚ·á

Á¦¸ñ ÁÖÂ÷Àå ¹Ù´ÚÀç ¹× ÁßÀÌÃþ ¹Ù´ÚÀç µµ¸é
ÀÛ¼ºÀÚ ÀÚ°­¿¡½º¾Ø¾¾
ÀÛ¼ºÀÏÀÚ 2022-09-13

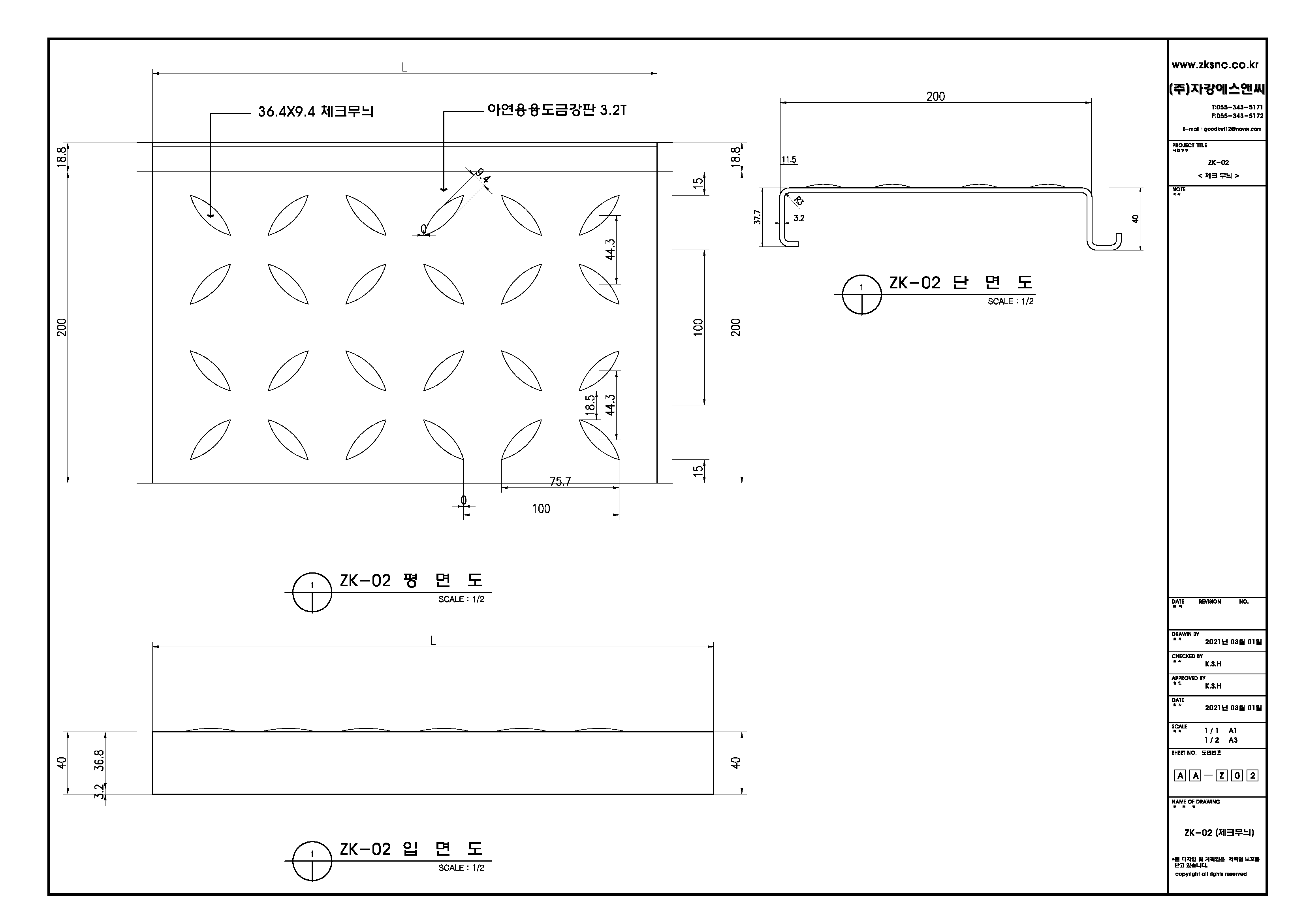
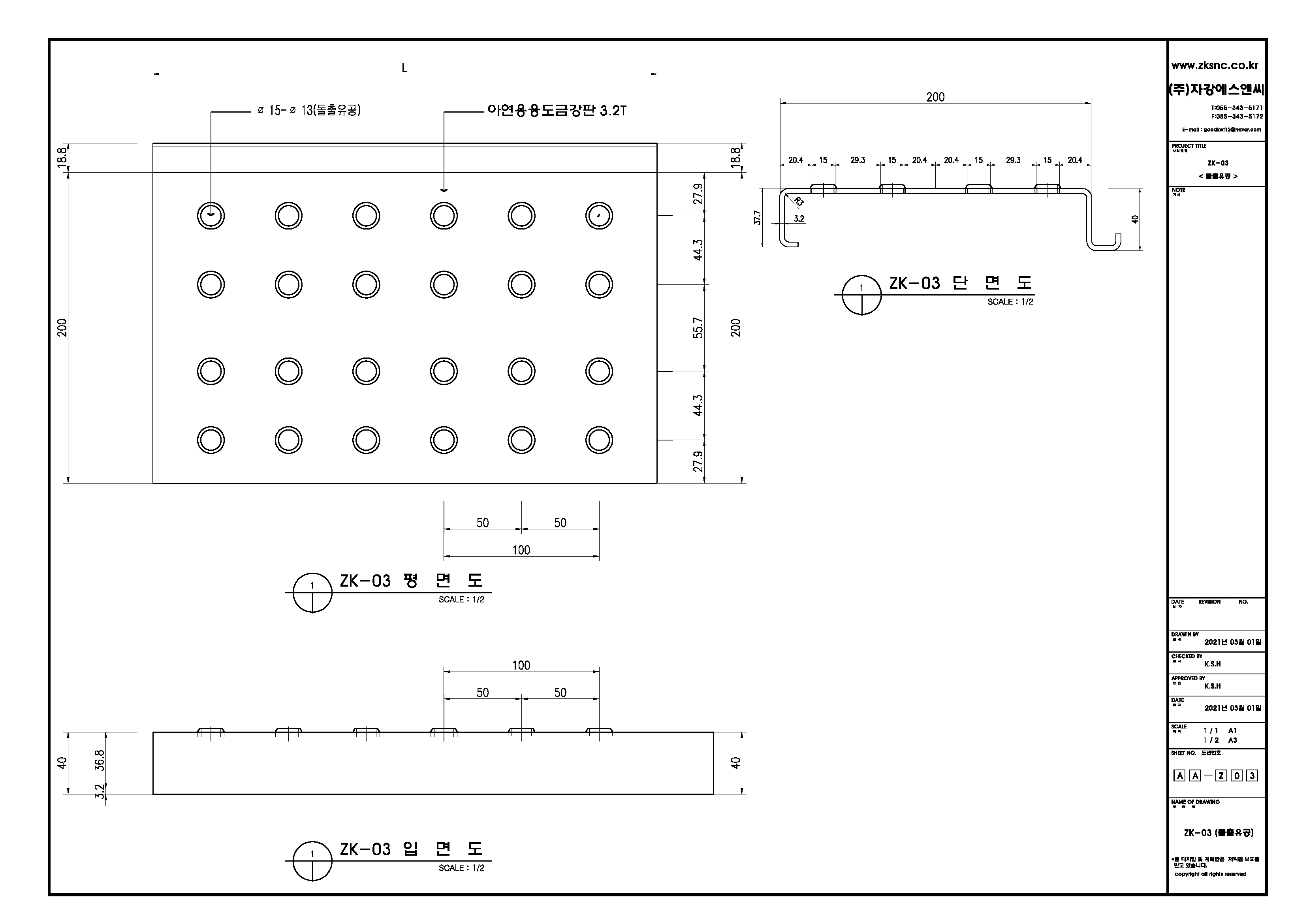
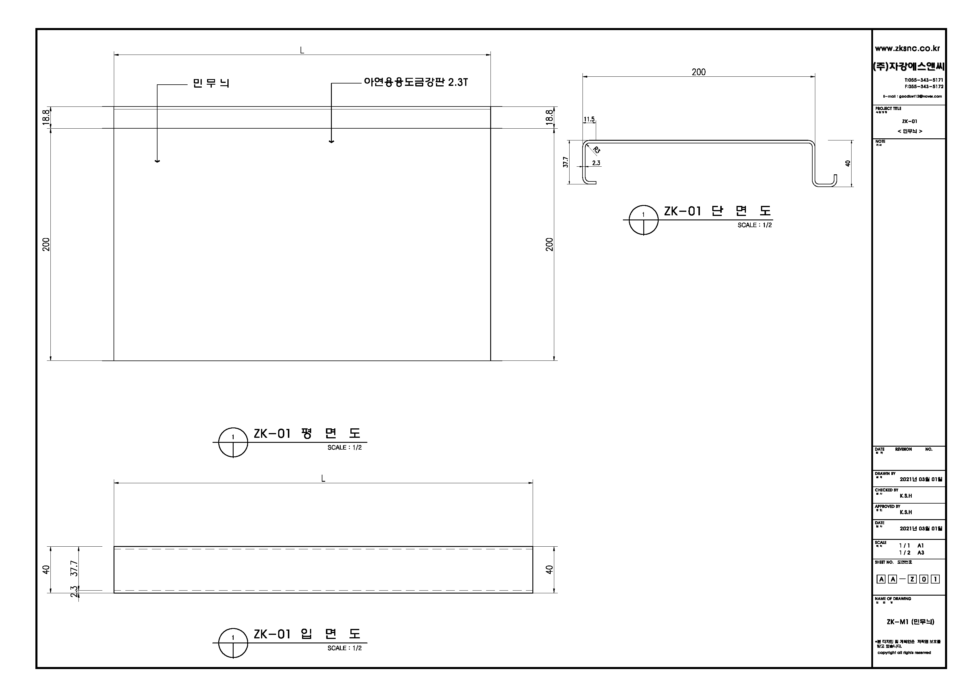
ÁÖÂ÷Àå ¹Ù´ÚÀç 200x40x2.3t 3.2t »ó¼¼µµ¸é dwg ÆÄÀÏ ¹× PDF ÆÄÀÏ













÷ºÎÆÄÀÏ
ÀÚ°­¿¡½º¾Ø¾¾+±âº»µµ¸é20210530.dwg
zk-1+2.3t+¹Î¹«´Ì01.pdf
zk-1+3.2t+¹Î¹«´Ì01.pdf
zk-2+2.3t+üũ¹«´Ì02.pdf
zk-2+3.2t+üũ¹«´Ì02.pdf

Zakang snc

We are a global company specializing in the construction of parking lots.

logo

ö°ñ °ø»ç
ö°ñÁÖÂ÷Àå/ÁßÀÌÃþ¹Ù´ÚÀç
ö°ñÀÚÁÖ½ÄÁÖÂ÷Àå
ºñ °í
½Ã°øÀÚ·á